



Q41F法蘭式球閥
Q41F法蘭式球閥本身結構緊湊,易于操作和維修,適用于水、溶劑、酸和天然氣等一般工作介質,只需要用旋轉90度的操作和很小的轉動力矩就能關閉嚴密。完全平等的閥體內腔為介質提供了阻力很小、直通的流道。通常認為球閥最適宜直接做開閉使用,但近來的發展已將球閥設計成使它具有節流和控制流量之用。
| 產品名稱: | 法蘭式球閥 | 產品型號: | Q41F |
| 公稱通徑: | DN15~DN300 | 結構形式: | 球形 |
| 公稱壓力: | 1.6Mpa~6.4Mpa | 連接方式: | 法蘭式 |
| 適用溫度: | -20~232℃~350℃~550℃ | 驅動方式: | 手動、電動、氣動 |
| 閥體材質: | 鑄鋼、不銹鋼 | 制造標準: | 國標GB、德國DIN、美國API、ANSI |
| 適用介質: | 水、油、氣及某些腐蝕性液體 | 生產廠家: | 上海凱利科閥門有限公司 |
| 設計與制造 | 結構長度 | 法蘭尺寸 | 壓力-溫度 | 試驗-檢驗 |
| GB122237 | GB12221 | GB9113 JB79 | GB9131 | GB/T13927 JB/T9092 |
| 驗項目 | 殼體試驗 | 密封試驗 | 上密封試驗 | 氣密封試驗 | |
| 介質 | 水 | 氣 | |||
| 單位 | MPa | MPa | MPa | MPa | |
| 公稱壓力PN(MPa) | 1.6 | 2.4 | 1 8 | 1 8 | 0.5-0.7 |
| 2.5 | 3.8 | 2.8 | 2.8 | ||
| 4.0 | 6.0 | 4.4 | 4.4 | ||
| 6.4 | 9.6 | 7.0 | 7.0 | ||
| 10.0 | 15.0 | 11.0 | 11.0 | ||
| 16.0 | 24.0 | 18.0 | 18.0 | ||
| 名稱 | 材料 | ||||||||
| 閥體 /閥蓋 | CF8 | CF3 | CF8M | CF3M | WCB | LCB | WC6 | WC9 | C5 |
| 球體 | CF8 | CF3 | CF8M | CF3M | WCB HCr | CF8 | CF8 | CF8 | CF8 |
| 閥桿 | F304 | F304L | F316 | F316L | 2C13 | F304 | F304 | F304 | F304 |
| 閥座 | PTFE/PPL | ||||||||
| 填料 /墊片 | PTFE/PPL | 石墨 | |||||||
| 螺栓 | 不銹鋼 | 35CrMoA | |||||||
| 螺母 | 不銹鋼 | 45、35CrMoA | |||||||
| 手柄 | 鑄鋼 | ||||||||
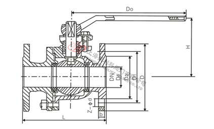
| 型號 | 公稱通徑 DN(mm) | 尺寸(mm) | |||||||
| L | D | D1 | D2 | b-f | z-Φd | H | W | ||
|
Q41F-16C Q41F-16P Q41F-16R Q41F-16RL Q341F-16C Q341F-16P Q341F-16R Q341F-16RL |
15 | 130 | 95 | 65 | 45 | 14-2 | 4-Φ14 | 65 | 115 |
| 20 | 140 | 105 | 75 | 55 | 14-2 | 4-Φ14 | 75 | 130 | |
| 25 | 150 | 115 | 85 | 65 | 14-2 | 4-Φ14 | 85 | 150 | |
| 32 | 165 | 135 | 100 | 78 | 16-2 | 4-Φ18 | 95 | 190 | |
| 40 | 180 | 145 | 110 | 85 | 16-3 | 4-Φ18 | 105 | 230 | |
| 50 | 200 | 160 | 125 | 100 | 16-3 | 4-Φ18 | 115 | 240 | |
| 65 | 220 | 180 | 145 | 120 | 18-3 | 4-Φ18 | 145 | 280 | |
| 80 | 250 | 195 | 160 | 135 | 20-3 | 8-Φ18 | 160 | 310 | |
| 100 | 280 | 215 | 180 | 155 | 20-3 | 8-Φ18 | 185 | 330 | |
| 125 | 320 | 245 | 210 | 185 | 22-3 | 8-Φ18 | 215 | 600 | |
| 150 | 360 | 280 | 240 | 210 | 24-3 | 8-中23 | 245 | 800 | |
| 200 | 400 | 335 | 295 | 265 | 26-3 | 12-Φ23 | 300 | 1000 | |
| 250 | 450 | 405 | 355 | 320 | 30-3 | 12-Φ25 | 380 | 1200 | |
| 型號 | 公稱通徑 DN(mm) | 尺寸(mm) | |||||||
| L | D | D1 | D2 | b-f | z-Φd | H | W | ||
|
Q41F-25C Q41F-25P Q41F-25R Q41F-25RL Q341F-25C Q341F-25P Q341F-25R Q341F-25RL |
15 | 130 | 95 | 65 | 45 | 14-2 | 4-Φ14 | 65 | 115 |
| 20 | 140 | 105 | 75 | 55 | 14-2 | 4-Φ14 | 75 | 130 | |
| 25 | 150 | 115 | 85 | 65 | 14-2 | 4-Φ14 | 85 | 150 | |
| 32 | 165 | 135 | 100 | 78 | 16-2 | 4-Φ18 | 95 | 190 | |
| 40 | 180 | 145 | 110 | 85 | 18-3 | 4-Φ18 | 105 | 230 | |
| 50 | 200 | 160 | 125 | 100 | 20-3 | 4-Φ18 | 115 | 240 | |
| 65 | 220 | 180 | 145 | 120 | 22-3 | 8-Φ18 | 145 | 280 | |
| 80 | 250 | 195 | 160 | 135 | 22-3 | 8-Φ18 | 160 | 310 | |
| 100 | 280 | 230 | 190 | 160 | 24-3 | 8-Φ23 | 185 | 330 | |
| 125 | 320 | 270 | 220 | 188 | 28-3 | 8-Φ25 | 215 | 600 | |
| 150 | 360 | 300 | 250 | 218 | 30-3 | 8-Φ25 | 245 | 800 | |
| 200 | 400 | 360 | 310 | 278 | 34-3 | 12-Φ25 | 300 | 1000 | |
| 250 | 450 | 425 | 370 | 332 | 36-3 | 12-Φ30 | 380 | 1200 | |
| 型號 | 公稱通徑 DN(mm) | 尺寸 (mm) | ||||||||
| L | D | D1 | D2 | D6 | b-f | z-Φd | H | W | ||
|
Q41F-40C Q41F-40P Q41F-40R Q41F-40RL Q341F-40C Q341F-40P Q341F-40R Q341F-40RL |
15 | 130 | 95 | 65 | 45 | 40 | 16-2 | 4-Φ14 | 70 | 115 |
| 20 | 140 | 105 | 75 | 55 | 51 | 16-2 | 4-Φ14 | 80 | 130 | |
| 25 | 150 | 115 | 85 | 65 | 58 | 16-2 | 4-Φ14 | 90 | 150 | |
| 32 | 180 | 135 | 100 | 78 | 66 | 18-3 | 4-Φ18 | 100 | 190 | |
| 40 | 200 | 145 | 110 | 85 | 76 | 18-3 | 4-Φ18 | 110 | 230 | |
| 50 | 220 | 160 | 125 | 100 | 88 | 20-3 | 4-Φ18 | 120 | 240 | |
| 65 | 250 | 180 | 145 | 120 | 110 | 22-3 | 8-Φ18 | 150 | 280 | |
| 80 | 280 | 195 | 160 | 135 | 121 | 22-3 | 8-Φ18 | 170 | 310 | |
| 100 | 320 | 230 | 190 | 160 | 150 | 24-3 | 8-Φ23 | 190 | 330 | |
| 125 | 360 | 270 | 220 | 188 | 176 | 28-3 | 8-Φ25 | 220 | 600 | |
| 150 | 400 | 300 | 250 | 218 | 204 | 30-3 | 8-Φ25 | 250 | 800 | |
| 200 | 550 | 375 | 320 | 282 | 260 | 38-3 | 12-Φ30 | 390 | 1200 | |
| 型號 Type | 公稱通徑 DN(mm) | 尺寸(mm) | ||||||||
| L | D | D1 | D2 | D6 | b-f | z-Φd | H | W | ||
|
Q41F-64C Q41F-64P Q41F-64R Q41F-64RL Q341F-64C Q341F-64P Q341F-64R Q341F-64RL |
15 | 140 | 105 | 75 | 55 | 40 | 18-2 | 4-Φ14 | 75 | 115 |
| 20 | 160 | 125 | 90 | 68 | 51 | 20-2 | 4-Φ18 | 85 | 130 | |
| 25 | 180 | 135 | 100 | 78 | 58 | 22-2 | 4-Φ18 | 95 | 150 | |
| 32 | 200 | 150 | 110 | 82 | 66 | 24-2 | 4-Φ23 | 105 | 190 | |
| 40 | 220 | 165 | 125 | 95 | 76 | 24-3 | 4-Φ23 | 120 | 230 | |
| 50 | 250 | 175 | 135 | 105 | 88 | 26-3 | 4-Φ23 | 130 | 240 | |
| 65 | 280 | 200 | 160 | 130 | 110 | 28-3 | 8-Φ23 | 160 | 280 | |
| 80 | 320 | 210 | 170 | 140 | 121 | 30-3 | 8-Φ23 | 180 | 310 | |
| 100 | 360 | 250 | 200 | 168 | 150 | 32-3 | 8-Φ25 | 200 | 330 | |
| 125 | 381 | 295 | 240 | 202 | 176 | 36-3 | 8-Φ30 | 230 | 600 | |
| 150 | 403 | 340 | 280 | 240 | 204 | 38-3 | 8-Φ34 | 260 | 800 | |
| 200 | 502 | 405 | 345 | 300 | 260 | 44-3 | 12-Φ34 | 400 | 1200 | |
聲明:【Q41F法蘭式球閥】規格型號、結構尺寸由上海凱利科閥門有限公司提供,如何選擇適用的Q41F法蘭式球閥產品,使之在工藝控制中安全可靠、經濟適用,可致電我司銷售部門及技術部門,我們將在最短的時間內為您解答! |